Conception et aménagement paysager à Arnas

Calad Jardins Services est votre artisan-paysagiste expert à Arnas. Au service des particuliers depuis 35 ans, nous prenons en charge la conception de votre projet d’aménagement extérieur que vous habitiez à Villefranche sur Saône et son agglomération, dans le Beaujolais, le département de l'Ain ou encore dans l'agglomération lyonnaise.

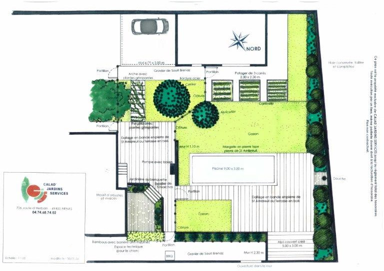
Conception d’un plan d'aménagement

Votre concepteur d'aménagement paysager

Calad Jardins Services vous accompagne dans la réalisation de votre projet d’aménagement extérieur.

 

Que ce soit en créant votre patio, en aménageant votre terrasse ou en réorganisant votre jardin, nous pouvons harmoniser les éléments pour créer un décor à la mesure de vos attentes.

 

Pour un aménagement paysager correspondant à votre rêve et à votre budget, nous effectuons les tâches suivantes :

 

  • Conception d’un plan d'aménagement : qui vous permet d'avoir un aperçu du projet. Ce plan prend en considération vos habitudes de vie, les éléments que vous voulez conserver et le style de jardin souhaité.
  • Phase de découverte : première visite pour connaitre le chantier
  • Proposition de plans manuels avec l’aide d’un architecte si le besoin se présente
  • Présentation du projet et validation
  • Chiffrage du projet d’aménagement
  • Lancement du chantier à réaliser

 

Nous sommes votre spécialiste en entretien de jardin
N’hésitez pas à nous contacter.

04 27 50 13 28

Votre aménageur d’espaces verts à Arnas

Vous souhaitez créer un jardin ? Faites appel à Calad Jardins Services, votre architecte paysagiste à Arnas

Spécialistes de l’aménagement extérieur et de la création d’espaces verts, nous vous garantissons la qualité de nos réalisations.

Terrasse bois, béton et pierre

À l'écoute de vos attentes, notre équipe formée apporte soin et rigueur à tous types de travaux d’espaces verts :

 

  • Création de cours, voiries et bordures
  • Aménagement extérieur
  • Création de jardins secs
  • Création végétale
  • Arrosage automatique
  • Bassins d'agrément
  • Engazonnement
  • Maçonnerie paysagère
  • Petit terrassement
  • Terrasse bois, béton et pierre

 

 

L’aménagement extérieur est une affaire de professionnels. Confiez votre projet à nos paysagiste-architectes qualifiés.
Nous saurons trouver la solution la mieux adaptée à votre espace et à vos goûts.

04 27 50 13 28

 

Nos engagements qualités

 Votre expert depuis 35 ans

Votre expert depuis 35 ans

Une offre complète de la conception à l'entretien

Une offre complète de la conception à l'entretien.

Une équipe sérieuse,  dynamique et diplômée

Une équipe sérieuse, 
dynamique et diplômée

Entretien :  bénéficiez de 50% de crédit d’impôt

Entretien

Bénéficiez de 50% de crédit d'impôt